Forma parte del proyecto “Mi hogar” que cuenta con un presupuesto de 1.242.000 euros financiado por la Unión Europea con fondos Next Generation, procedentes del mecanismo para la Recuperación, Transformación y Resiliencia.
La Junta de Gobierno local de la Diputación ha aprobado el proyecto para la reforma del Edificio Infantes de la residencia San José de El Burgo de Osma para adaptarlo a unidades de convivencia que cuenta con un presupuesto de 1.031.101,50 euros redactado por los arquitectos Miguel de Lozar y Alfonso Sachez de Toca.
Se trata de una importante inversión social de la Diputación provincial en colaboración con la Gerencia de Servicios Sociales financiado por la Unión Europea con fondos Next Generation, procedente del mecanismo para la Recuperación, Transformación y Resiliencia.
El presidente Benito Serrano ha destacado que el objetivo de este proyecto es ir adaptando las residencias de la institución a los nuevos tiempos, que demandan una mayor independencia de los residentes, con su espacio propio en apartamentos individuales, pero cobijados por los servicios de la Residencia San José de El Burgo de Osma.
“Mejorar los servicios sociales que ofrece la Diputación provincial y hacer la vida más fácil y agradable a todos los usuarios de las residencias, es la línea que nos marcamos y que tratamos de ir cumpliendo con importantes proyectos e inversiones” ha declarado Serrano ha hecho especial hincapié em que se trata de conseguir que las personas se sientan como en su casa, por la autonomía que les proporciona el disponer de un espacio propio, pero con la ayuda necesaria que se brinda desde el centro para seguir teniendo en la vejez una buena calidad de vida.

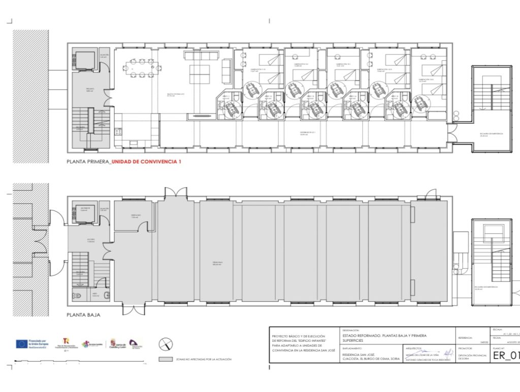
El proyecto recoge un total de 15 habitaciones, 5 en cada planta, 9 dobles y 6 sencillas, dotadas de baño con ducha, y cada planta tendrá además compartidos los espacios de cocina con comedor y un salón, sumando un total de 24 plazas.
Las unidades de convivencia disponen de un espacio habitacional y de baño de entorno a los 20 metros cuadrados para las habitaciones dobles y 16,5 metros cuadrados las sencillas, mientras que las zonas comunes, como salón, cocina y distribuidor ocupan 108 metros cuadrados por planta. En la planta baja se dispondrá de los ascensores, de un espacio para almacén, así como de un despacho y de una gran sala de 205 metros cuadrados.

La obra está adjudicada a la empresa Indesfor y el plazo para que el proyecto esté ejecutado es el segundo semestre del año 2026.
La Junta de Gobierno local también ha aprobado el proyecto para la instalación de recarga para vehículos eléctricos en Golmayo, Garray y Ólvega con un presupuesto de 86.858,40 euros, cuyo proyecto está redactado por Jaime Miguel Pérez, técnico del Departamento de Arquitectura y Urbanismo de la Diputación, y financiado con fondos europeos PR-D5000-003854.
La Junta de Gobierno ha adjudicado el contrato del suministro de una retroexcavadora de ruedas nueva de giro reducido a la empresa Finanzauto SAU que oferta de la marca Caterpillar el modelo M-315 en un precio de 252.890 euros, IVA incluido, al ser la oferta, de las cuatro que concurrieron, que mejor relación calidad precio presentó.
También se ha aprobado la adjudicación del contrato de desarrollo de una plataforma de sistema de inteligencia turística y data Mining de la Celtiberia Soriana, en el marco del plan de sostenibilidad turística en destino financiado por la unión europea, Net GenerationEU, a la empresa Auren Consultores SP en un precio de 33.759 euros, IVA incluido, al ser la oferta, de las seis ofertas que concurrieron, que mejor calidad precio presentó.
La Junta de Gobierno ha aprobado el proyecto de renovación de instalaciones de alumbrado exterior en la Póveda de Soria redactado por Jaime Miguel Pérez con un presupuesto total de ejecución general de 97.407,44 euros.
También se ha autorizado a la entidad local menor de Lubia para la enajenación de ocho fincas del sector SUD-A, cuatro de ellas salen por un precio cada una de 25.041 euros para una extensión de 483 metros cuadrados.
La Junta de Gobierno ha desestimado el recurso de reposición presentado por el responsable de una farmacia rural de la provincia al no tener su domicilio fiscal, en el momento de presentación de solicitud, en ningún municipio de la provincia, incumpliendo la base cuarta de la convocatoria.
La Junta de Gobierno ha acordado, por último, conceder siete ampliaciones de prórroga para la justificación de subvenciones para actividades culturales hasta el 15 de noviembre. En concreto a los ayuntamientos de Torlengua de Soria, Miño de Medinaceli y El Burgo de Osma, y a las asociaciones Junta Gestora Monte de la Sociedad del Conde de la Póveda de Soria, a Mujeres La Rueda, Mayores Pasaderas del Duero y la Casa de Soria en Valencia.




